Котел 4.0 МВт дизельный в Рудном

Дизельный котел КВа 4.0 МВт
Котел КВа 4.0 МВт дизельный
Чертеж дизельного котла КВа 4.0
Дизельный котел КВа 4.0 чертеж
Дизельный водогрейный котел 4.0 МВт
Водогрейный дизельный котел 4.0 МВт
Дизельный котел 4.0 МВт промышленный
Промышленный дизельный котел 4.0 МВт
Дизельные котлы 4.0 МВт
Котлы дизельные 4.0 МВт
Котел 4.0 МВт отопительный на дизеле
Отопительный котел 4.0 МВт на дизеле
Дизельный котел 4.0 МВт производство
Производство дизельных котлов 4.0 МВт
Дизельный котел КВа 4.0 МВт
Чертеж дизельного котла КВа 4.0
Дизельный водогрейный котел 4.0 МВт
Дизельный котел 4.0 МВт промышленный
Дизельные котлы 4.0 МВт
Котел 4.0 МВт отопительный на дизеле
Дизельный котел 4.0 МВт производство
Цена
10 684 800 ₸
От 10 684 800 ₸ с доставкой до г.
  • Автоматическое регулирование температурных режимов
  • Надежная гладкотрубная конструкция исключает деформации и разрывы швов
  • Встроенная система взрывобезопасности
  • Низкие требования к качеству питательной воды
  • Модель работает с отечественными и импортными горелками

Технические характеристики котла 4.0 МВт дизельного

МаркаКотел 4.0 МВт дизельный
ВидВодогрейный
Тип отопительного котлаЖидкотопливный
БрендHEATEXPERT
ТипКотел КВа
Вид топкиДизельная горелка
Совместимое горелочное устройствоИмпортные горелки Gib Unigas, Oilon, Ecoflam и тд.
Максимальная тепловая мощность4 МВт
Максимальная тепловая мощность4000 кВт
Максимальная тепловая мощность3.44 Гкал
Диапазон регулирования мощности40-100 %
ТопливоЖидкое, Дизель
Низшая теплота сгорания проектного топлива10200 кКал/кг
КПД котла на ДИЗЕЛЕ, не менее92.7 %
Расход ДИЗЕЛЯ среднечасовой за отопительный сезон204 кг/ч
Расход ДИЗЕЛЯ при максимальной нагрузке котла364 кг/ч
Расход условного топлива530 кг/ч
Минимальная температура воды на входе в котел55 °С
Максимальная температура воды на выходе из котла115 °С
Давление воды, не более0.3-0.6 (3-6) МПа (кгс/см²)
Номинальный расход теплоносителя138 м³/ч
Расход теплоносителя через котел min-max103-172 м³/ч
Гидравлическое сопротивление при номинальном расходене более 0.07 (0.7) МПа (кгс/см²)
Аэродинамическое сопротивление340 (34) Па (мм. вод. ст.)
Давление в топочной камере390 (39) Па (мм. вод. ст.)
Объем уходящих газов7100 м³/ч
Температура уходящих газов152 °С
ТягаПринудительная
Водяной объем котла1700 л
Объем топочной камеры10.42 м³
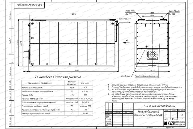
Размер топочной камеры, длина*ширина*высота4625х1610х1400 мм
Присоединительные размеры по водяному тракту200 Ду
Присоединительные размеры газохода уходящих газов, ширина*высота / сечение1200х215 / 0.26 мм/м²
Габаритные размеры котла, длина*ширина*высота5155х2005х2720 мм
Масса6700 кг
Конструкция котлаВодотрубная
Количество контуровОдноконтурный
РазмещениеНапольный
Тип камеры сгоранияЗакрытый
УправлениеЭлектронное
Принцип работы газового котлаКонвекционный
ЭнергонезависимыйНет
Тип питанияТрехфазное
Встроенный циркуляционный насосНет
Встроенный расширительный бакНет
ЭнергоэффективностьВысокая
Размеры корпуса котла, длина*ширина*высота4925х1865х2620 мм
Отапливаемая площадьот 33400 до 44000 м²
Отапливаемый объемот 100200 до 132000 м³

Водогрейный дизельный котел 4.0 МВт в Рудном

Водогрейный дизельный котел КВа 4.0 предназначен для установки в промышленных котельных с целью отопления и горячего водоснабжения производственных помещений и жилых зданий. Может работать с широким рядом горелочных устройств как иностранного, так и отечественного производства. Максимальная температура нагрева воды 115 °С, давление - от 0,3 до 0,6 МПа. Используемое топливо – дизель.

Дизельный котел 4.0 МВт устройство

Промышленный стальной жидкотопливный котел 4,0 МВт на дизеле - напольный, гладкотрубный, выполнен в горизонтальном расположении. Газоплотная топка расположена в передней части теплоагрегата. В верхней части котельного блока находится двухходовой конвективный пакет. Фронтовая плита может быть выполнена под конкретный тип горелки. Снаружи котлоагрегат обшивается стальными листами с теплоизоляцией.

Конструкция трубной системы обеспечивает компактность котла. Гладкотрубная поверхность нагрева исключает деформации и разрывы швов. Стены газоплотной топки представляют собой охлаждаемые трубы с вваренной между ними стальной полосой. В задней зоне камеры горения крепится взрывной клапан. При повышении давления в топочной камере, клапан открывается и спускает давление. Конвективные пакеты размещены в шахматном порядке друг напротив друга. Благодаря этому поверхность нагрева имеет большую полезную площадь и максимальный коэффициент передачи тепла. Дымовые газы успевают охладиться к выходу из котлоагрегата до температуры 200-180 °С, что снижает теплопотери.

Благодаря гладкотрубной системе, небольшому объему циркулирующей воды, наличию взрывного клапана – водотрубный котел 4,0 МВт дизель безопасен, нет риска взрыва в аварийной ситуации.

За счет изоляции трубной системы котла плитами ПТЭ и обшивке стальными листами температура наружных стенок не превышает 30 °С.

Гидравлическая схема котла

Стационарный отопительный водяной котел 4 0 МВт на жидком дизельном топливе не требователен к качеству питательной воды.

Высокая скорость движения воды турбулизирует поток и не допускает отложение солей и образование накипи на стенках труб. Многочисленные перегородки в коллекторах распределяют поток теплоносителя. В результате чего в трубной системе исключаются застойные зоны, тепловые напряжения и локальный перегрев.

Принцип работы котла 4.0 МВт на дизеле

Горелка обеспечивает смешивание топлива с воздухом, поступление газовоздушной смеси в топку и ее горение. При помощи горелки поддерживается необходимая температура в котлоагрегате, но не более 115 °С. При достижении предельной температуры воды горелка автоматически отключается и включается.

Тепло образующееся от горения топлива поступает в конвективную часть, нагревая теплоноситель.

Конструкция топочной камеры и ее большой объем позволяют подключать горелки большинства ведущих российских и иностранных производителей, в том числе EMMA, ILKA, CIB UNIGAS, BALTUR, ECOSTAR и другие. Наш завод также производит модели котлов для работы на российских горелках РГМГ, ГБЛ, ГМ, ГМГ, АПНД, ГГ.

Комплект поставки

Цена на напольные дизельные котлы КВа 4,0 МВт для отопления включает базовую комплектацию. В состав базовой комплектации входит: затворы, предохранительные клапаны, вентили, манометры, термометры, трехходовые краны.

Дополнительная комплектация

  • автоматика – обеспечивает управление и безопасность котла;
  • горелка – обеспечивает смешивание газа и воздуха, подачу газовоздушной смеси к фронту горения, регулирование процесса горения;
  • циркуляционный насос - обеспечивает циркуляцию воды в котлоагрегате;
  • подпиточный насос – позволяет пополнять объем теплоносителя в контуре.

Купить дизельный котел 4.0 МВт

Для того, что бы купить котел 4.0 МВт на дизеле в Рудном вы можете сделать заявку по телефону +7-7172-69-59-73, либо оформить заявку онлайн. Менеджеры дадут консультацию по подбору вспомогательного оборудования для выбранных вами моделей и рассчитают стоимость доставки. Транспортирование котлоагрегата и вспомогательного оборудования до объекта осуществляется автомобильным транспортом.

Комплект поставки котла 4.0 МВт дизельного

Затвор Ду 200
Затвор Ду 200
2 штуки
Предохранительный клапан 17с28нж Ду 50
Клапан предохранительный 17с28нж Ду 80
1 штука
Клапан обратный
Клапан обратный
1 штука
Манометр МП 160
Манометр МП 160
2 штуки
Кран трехходовой ДУ 15
Кран Ду 15
2 штуки
Термометр ТТЖО
Термометр ТТЖО
2 штуки
Оправа термометра ОПТ
Оправа ОПТ
2 штуки
Шаровый кран
Кран шаровый
15 штук

Вспомогательное оборудование для работы котла 4.0 МВт дизельного

Дизельная горелка Emma
Цена 11 219 040 тг.
Дизельная горелка СибСтронг
Цена по запросу
Насос К консольный
К 125-100-200а
Цена по запросу
Насос К консольный
К 65-50-160
Цена 395 592 тг.
Насос TD
Насос TD125-28G4 (18,5 кВт)
Цена 3 393 696 тг.
Насос CHL
Насос CHL15-30 (3 кВт)
Цена 693 240 тг.

Аналоги котла 4.0 МВт дизельного

Газовый котел КВа 4.0 МВт
Котел 4.0 МВт газовый
Вид топкиГазовая горелка
Максимальная тепловая мощность, МВт4
ТопливоГаз
Отапливаемая площадь, м²от 33400 до 44000
Цена 10 684 800 тг.
Котел 4.0 МВт на мазуте
Котел 4.0 МВт мазутный
Вид топкиМазутная горелка
Максимальная тепловая мощность, МВт4
ТопливоМазут, Жидкое
Отапливаемая площадь, м²от 33400 до 44000
Цена 10 901 040 тг.
Дизельный котел КВа 3.0 МВт
Котел 3.0 МВт дизельный
Вид топкиДизельная горелка
Максимальная тепловая мощность, МВт3
ТопливоДизель, Жидкое
Отапливаемая площадь, м²от 25000 до 32900
Цена 8 904 000 тг.
Дизельный котел КВа 3.5 МВт
Котел 3.5 МВт дизельный
Вид топкиДизельная горелка
Максимальная тепловая мощность, МВт3.5
ТопливоДизель, Жидкое
Отапливаемая площадь, м²от 29300 до 38400
Цена 10 048 800 тг.

Сертификат и качество котла 4.0 МВт дизельного

Сертификат на водогрейные котлы на газе и жидком топливе
Сертификат на водогрейные котлы на газе и жидком топливе

Собственное производство

Котельный завод производит
  • Паровые котлы от 300 кг до 2.5 тонны пара в час
  • Промышленные водогрейные котлы от 150 КВт до 4 МВт на всех видах топлива
  • Механические топки ТШПМ, шурующая планка и ТЛПХ, ленточное полотно прямого хода
  • Циклоны для очистки воздуха и дымовых газов для производств и промышленных отраслей
  • Транспортеры и системы топливоподачи и шлакоудаления
Подробнее о производстве
Собственное производство
Смотреть видео
с производства