Котел на древесных отходах 930 кВт в Рудном

На древесных отходах котел 930 кВт
Котел на древесных отходах 930 кВт
Чертеж котла на древесных отходах 930 кВт
Котел на древесных отходах 930 кВт чертеж
Котлы на отходах деревообработки 930 кВт
Котел на отходах деревообработки 930 кВт
Котлы для сжигания отходов 930 кВт
Котел для сжигания отходов 930 кВт
Котел на отходах лесопиления твердотопливный 930 кВт
Твердотопливный котел на отходах лесопиления 930 кВт
Шибер газохода котла 930 кВт на древесных отходах
Шибер газохода котла на древесных отходах 930 кВт
Котлы на отходах 930 кВт
Котел на отходах 930 кВт
Котел на древесных отходах 930 кВт подовая топка
Подовая топка котла для сжигания древесных отходов 930 кВт
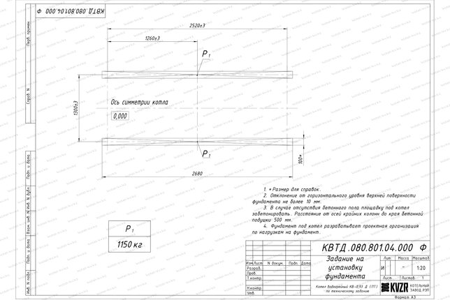
Чертеж фундамента для котла на древесине 930 кВт
Фундамент для котла на древесине 930 кВт чертеж
На древесных отходах котел 930 кВт
Чертеж котла на древесных отходах 930 кВт
Котлы на отходах деревообработки 930 кВт
Котлы для сжигания отходов 930 кВт
Котел на отходах лесопиления твердотопливный 930 кВт
Шибер газохода котла 930 кВт на древесных отходах
Котлы на отходах 930 кВт
Котел на древесных отходах 930 кВт подовая топка
Чертеж фундамента для котла на древесине 930 кВт
Цена
5 577 720 ₸
От 5 577 720 ₸ с доставкой до г.
Логотип WhatsApp Связаться
по WhatsApp
  • Котел работает на древесных отходах естественной влажности - дровах, щепе, коре, стружке, опилках, досках, поддонах, отходах мебельного производства, ДСП
  • Большой объем топочной камеры
  • Полное догорание топлива

Технические характеристики

МаркаКотел КВ Д 930
ВидВодогрейный
Тип отопительного котлаТвердотопливный
БрендHEATEXPERT
ТипКотел КВ Д ПТ
Вид топкиРучная, Подовая
Максимальная тепловая мощность0.93 МВт
Максимальная тепловая мощность930 кВт
Максимальная тепловая мощность0.8 Гкал
Диапазон регулирования мощности50-100 %
ТопливоТвердое, Дрова, Древесные отходы естественной влажности
Низшая теплота сгорания проектного топлива2440 кКал/кг
Влажность топлива40 %
КПД котла на ДРОВАХ, не меннее80 %
Расход ДРОВ среднечасовой за отопительный сезон237.9 кг/ч
Расход ДРОВ среднечасовой за отопительный сезон0.5 м³/ч
Расход ДРОВ при максимальной нагрузке котла416 кг/ч
Расход ДРОВ при максимальной нагрузке котла0.87 м³/ч
Расход условного топлива145 кг/ч
Минимальная температура воды на входе в котел55 °С
Максимальная температура воды на выходе из котла115 °С
Давление воды, не более0.3-0.6 (3-6) МПа (кгс/см²)
Номинальный расход теплоносителя32 м³/ч
Расход теплоносителя через котел min-max24-40 м³/ч
Гидравлическое сопротивление при номинальном расходене более 0.07 (0.7) МПа (кгс/см²)
Аэродинамическое сопротивление77 (7.7) Па (мм. вод. ст.)
Разряжение в топочной камере20-40 (2-4) Па (мм. вод. ст.)
Объем уходящих газов4470 м³/ч
Температура уходящих газов220 °С
ТягаУравновешенная
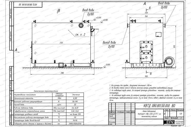
Водяной объем котла740 л
Объем топочной камеры3.77 м³
Размер топочной камеры, длина*ширина*высота1705х1300х1700 мм
Активная площадь решетки горения1.29 м²
Присоединительные размеры по водяному тракту100 Ду
Присоединительные размеры газохода уходящих газов, ширина*высота / сечение600х200 / 0.12 мм/м²
Габаритные размеры котла, длина*ширина*высота2975х1930х2250 мм
Масса2700 кг
Конструкция котлаВодотрубная
Количество контуровОдноконтурный
РазмещениеНапольный
Тип камеры сгоранияОткрытый
УправлениеЭлектронное
Принцип работы твердотопливного котлаКлассический
ЭнергонезависимыйНет
Тип питанияТрехфазное
Встроенный циркуляционный насосНет
Встроенный расширительный бакНет
ЭнергоэффективностьВысокая
Отапливаемая площадьот 7100 до 10200 м²
Отапливаемый объемот 21300 до 30500 м³
Размеры корпуса котла, длина*ширина*высота мм

Котел 930 кВт на древесных отходах в Рудном

Промышленный твердотопливный котел на древесных отходах 930 кВт предназначен для работы на сырых и влажных дровах, бревнах, поленьях, горбыле, щепе, коре, стружке, опилках, досках, поддонах, ДСП.

Котел наиболее актуален для предприятий деревообработки, лесопилок, пилорам, лесхозов, мебельного производства. При помощи данной модели Вы решаете проблему с утилизацией отходов производства, при этом значительно экономите на отоплении.

Котел 930 кВт на отходах деревообработки устройство

Водогрейный отопительный котел 930 кВт на древесине состоит из котельного блока и ручной подовой топки.

Котельный блок имеет гладкотрубную, газоплотную конструкцию с теплоизоляцией, обшитую декоративными стальными листами. Топка с двумя большими загрузочными дверками расположена в передней части котлоагрегата. В задней части установлен двухходовой конвективный пакет. Чистка конвективных пакетов производится через люк.

Топочная часть

Производственный котел утилизатор древесных отходов мощностью 930 кВт изготавливается с подовой топкой, выполненной из огнеупорного кирпича. Футеровка обеспечивает высокую температуру в топочной камере и лучший теплосъем. Большой объем топочной камеры позволяет загружать крупногабаритные отходы лесопиления в большом количестве. Котел может применяться для сжигания влажного топлива. Пояс зажигания обеспечивает сушку сырой древесины. Система воздуховодов распределяет подачу воздуха на первичную и вторичную, а также выполняет функцию подогрева. Легкие и мелкие частицы, захватываемые потоком уходящих газов, догорают в поворотной камере, расположенной на выходе из топки.

Для удобного выгребания золы из топки в футеровку врезан лючок.

Конвективная часть

Конвективная поверхность стального водонагревательного котла 930 кВт для сжигания древесных отходов выполнена из труб расположенных в шахматном порядке. Это обеспечивает значительную нагревательную площадь, более полное омывание труб горячими газами и высокий коэффициент передачи тепла. В результате горячие дымовые газы подвергаются охлаждению до 200-180 °С.

Гидравлическая схема котла

Конструкция водяного котла 930 кВт на отходах лесопиления предполагает минимальные требования к водоподготовке. Скорость движения воды в трубах вызывает турбулизацию водного потока, что препятствует отложению солей и образованию накипи на стенках труб. Многочисленные перегородки в коллекторах котла не допускают образование застойных зон, возникновение теплового напряжения в трубах и перегрев.

Принцип работы котла 930 кВт на древесных отходах

Плотным слоем топливо укладывается на под топки. Розжиг производится сверху и постепенно огонь опускается вниз, обеспечивая равномерное горение. Первичный воздух из зоны горения перемещается к задней стенке топки, образуя небольшое количество золы. Вторичный воздух подается с большой скоростью для дожига топливных частиц. Топливо находится в топке до полного выгорания.

Комплект поставки

Цена на котел 930 кВт на древесных отходах включает базовую комплектацию. В состав базовой комплектации входит: вентилятор поддува, затворы, предохранительные клапаны, вентили, манометры, термометры, трехходовые краны.

Дополнительная комплектация

  • автоматика – обеспечивает управление и безопасность котла;
  • дымосос – создает разряжение в котле и исключает попадание дыма в помещение;
  • циркуляционный насос - обеспечивает циркуляцию воды в котлоагрегате;
  • подпиточный насос – позволяет пополнять объем теплоносителя в контуре.

Купить котел 930 кВт на древесных отходах

Для того чтобы купить котел 930 кВт на отходах деревообработки в Рудном вы можете сделать заявку по телефону +7-7172-69-59-73, либо оформить заявку онлайн. Менеджеры дадут консультацию по подбору вспомогательного оборудования для выбранных вами моделей и рассчитают стоимость доставки. Транспортирование котлоагрегата и вспомогательного оборудования до объекта осуществляется автомобильным транспортом.

Комплект поставки

Вентилятор
Вентилятор 2 с дв. 2,2/3000
1 штука
Затвор Ду 100
Затвор Ду 100
2 штуки
Клапан предохранительный Ду 50
Клапан Ду 50
1 штука
Клапан обратный
Клапан обратный
1 штука
Манометр МП 160
Манометр МП 160
2 штуки
Кран трехходовой ДУ 15
Кран Ду 15
2 штуки
Термометр ТТЖО
Термометр ТТЖО
2 штуки
Оправа термометра ОПТ
Оправа ОПТ
2 штуки
Вентиль Ду 15
Вентиль Ду 15
5 штук
Вентиль Ду 20
Вентиль Ду 20
7 штук

Дополнительно потребуется

Насос К консольный
К 80-65-160
Цена 455 376 тг.
Насос К консольный
К 50-32-125
Цена 283 656 тг.
Насос TD
Насос TD40-36G2 (5.5 кВт)
Цена 1 225 572 тг.
Насос TD
Насос TD80-29G2 (7.5 кВт)
Цена 1 294 896 тг.
Насос CHL
Насос CHL4-40 (0.75 кВт)
Цена 352 344 тг.
Дымосос ДН 6.3
Цена 644 904 тг.
Газоход котла
Цена по запросу

Похожая продукция

Котел 930 кВт дрова уголь
Цена 4 700 040 тг.
Котел 900 кВт дрова уголь
Цена 4 687 320 тг.
На опилках котел 900 кВт
Цена 13 686 720 тг.

Сертификаты товара

Сертификат на водогрейные котлы на твердом и жидком топливе
Сертификат на водогрейные котлы на твердом топливе

Собственное производство

Котельный завод производит
  • Паровые котлы от 300 кг до 2.5 тонны пара в час
  • Промышленные водогрейные котлы от 150 КВт до 4 МВт на всех видах топлива
  • Механические топки ТШПМ, шурующая планка и ТЛПХ, ленточное полотно прямого хода
  • Циклоны для очистки воздуха и дымовых газов для производств и промышленных отраслей
  • Транспортеры и системы топливоподачи и шлакоудаления
Подробнее о производстве
Собственное производство
Смотреть видео
с производства